Besichtigungstermine:
Dienstag, 21.04.26 / 17.00 – 18.00 Uhr
Mittwoch, 22.04.26 / 17.00 – 18.00 Uhr
(ohne Voranmeldung, klingeln bei Mc Henry)
Die Liegenschaft liegt ruhig gelegen. Die Naherholungsgebiete rund um die Töss, der Bahnhof und auch die Einkaufsmöglichkeiten sind innert Kürze zu erreichen.
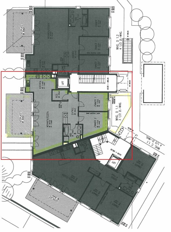
Die helle und ruhige Wohnung bietet folgende Ausstattungen:
-offene, grosszügige Küche mit modernen Geräten und viel Stauraum
-grosses Wohnzimmer, welches diverse Stellmöglichkeiten zulässt (ca. 40m2)
-Badezimmer mit Dusche und Badewanne
-separates Gäste-WC
-Bodenheizung in der gesamten Wohnung
-grosszügiger, gedeckter Sitzplatz mit Garten (zur eigenen Nutzung, muss selbst gepflegt werden)
-eigene Waschküche im UG
-Kellerabteil im UG
Zur Wohnung kann ein Garagenplatz à CHF 140.00 / Monat zugemietet werden.
Haben wir Ihr Interesse geweckt? Gerne können Sie ohne Voranmeldung am oben erwähnten Besichtigungstermin teilnehmen. Anmeldeformulare sind an der Besichtigung erhältlich.









